Tekenwerk

Complete ondersteuning bij omgevingsvergunningen, van tekenwerk tot en met goedkeuring door de gemeente.


GEVELAANZICHTEN

Architectuurtekening met AutoCad 2D van een gebouw met voorgevel en zijaanzicht, inclusief details zoals ramen, deuren en plattegronden.

THE VISION

Een gevelaanzicht laat zien hoe de buitenzijde van het gebouw eruitziet. Hierin staan materialen, afmetingen van ramen en deuren, draairichtingen en de peilhoogte van de vloer. Dit geeft de gemeente én de aannemer een helder beeld van het exterieur.


WAAROM EEN BOUWTEKENING?

Een bouwtekening is de visuele en technische vertaling van een bouwplan. Hierin vind je alle afmetingen, gebruikte materialen en specifieke details van het bouwwerk. Ga je verbouwen? Dan is zo’n tekening onmisbaar om het proces soepel te laten verlopen. Voor een Omgevingsvergunning is een bouwtekening verplicht, maar ook zonder vergunningsplicht geeft het veel duidelijkheid. Het document helpt de aannemer exact te begrijpen wat er gerealiseerd moet worden, waardoor offertes beter onderbouwd zijn en misverstanden worden voorkomen. Bovendien vormt het een belangrijk communicatiemiddel tussen jou als opdrachtgever en de uitvoerder: één duidelijke leidraad voor het hele project.

‘Meer informatie over 3D RENDERING’

THE BLUEPRINT


DOORSNEDEN

Doorsnede met AutoCad van een huis in zwart-wit met meerdere verdiepingen, een schoorsteen, en een persoon op de eerste verdieping, met tuin en fundering.

‘Meer informatie over TEKENWERK’

THE SHAPE

Een doorsnede toont het gebouw alsof het verticaal is doorgesneden. Zo zie je vloerdiktes, trapopstellingen, plafondhoogtes en de hoogte van deuren. Ideaal om constructieve details en verhoudingen te beoordelen.


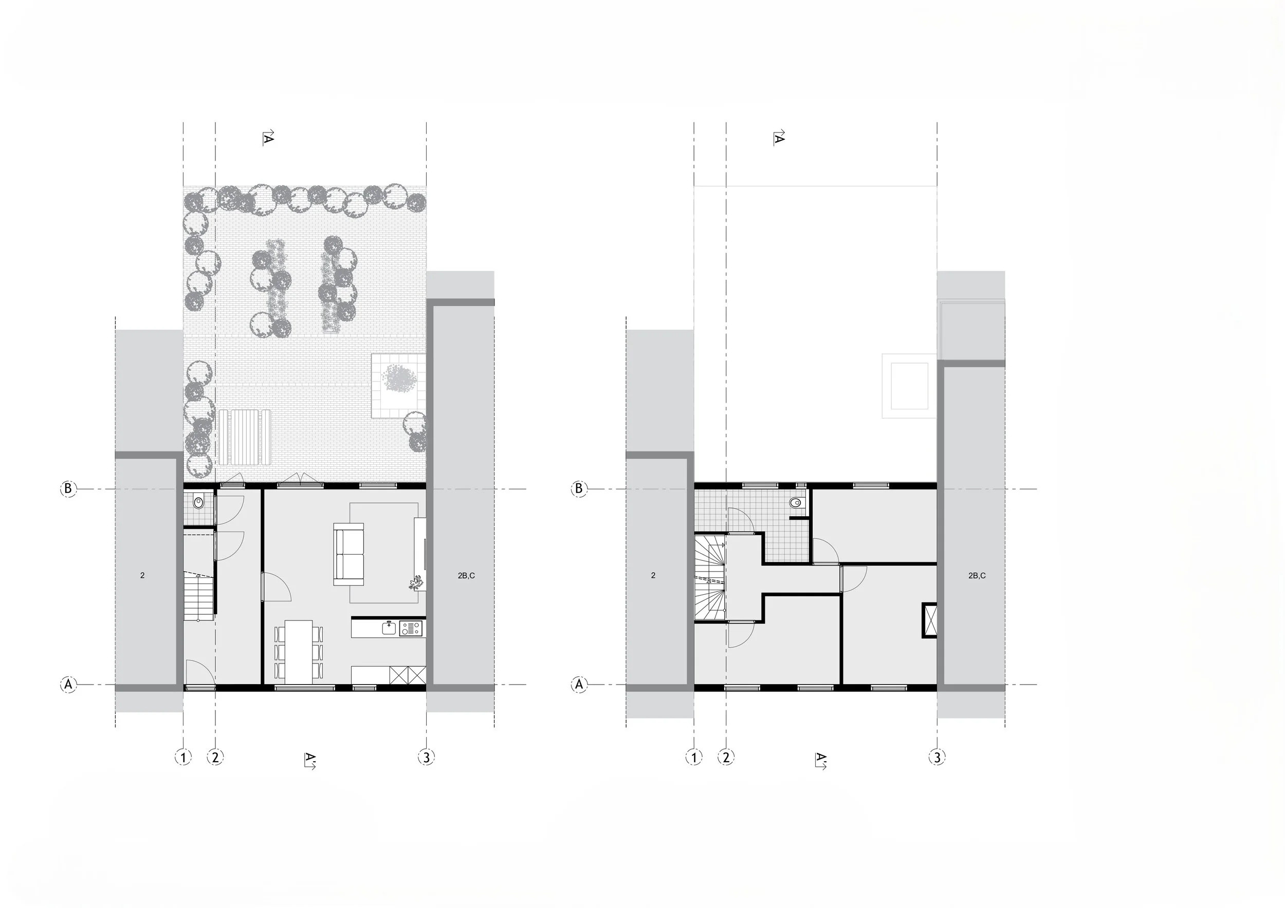
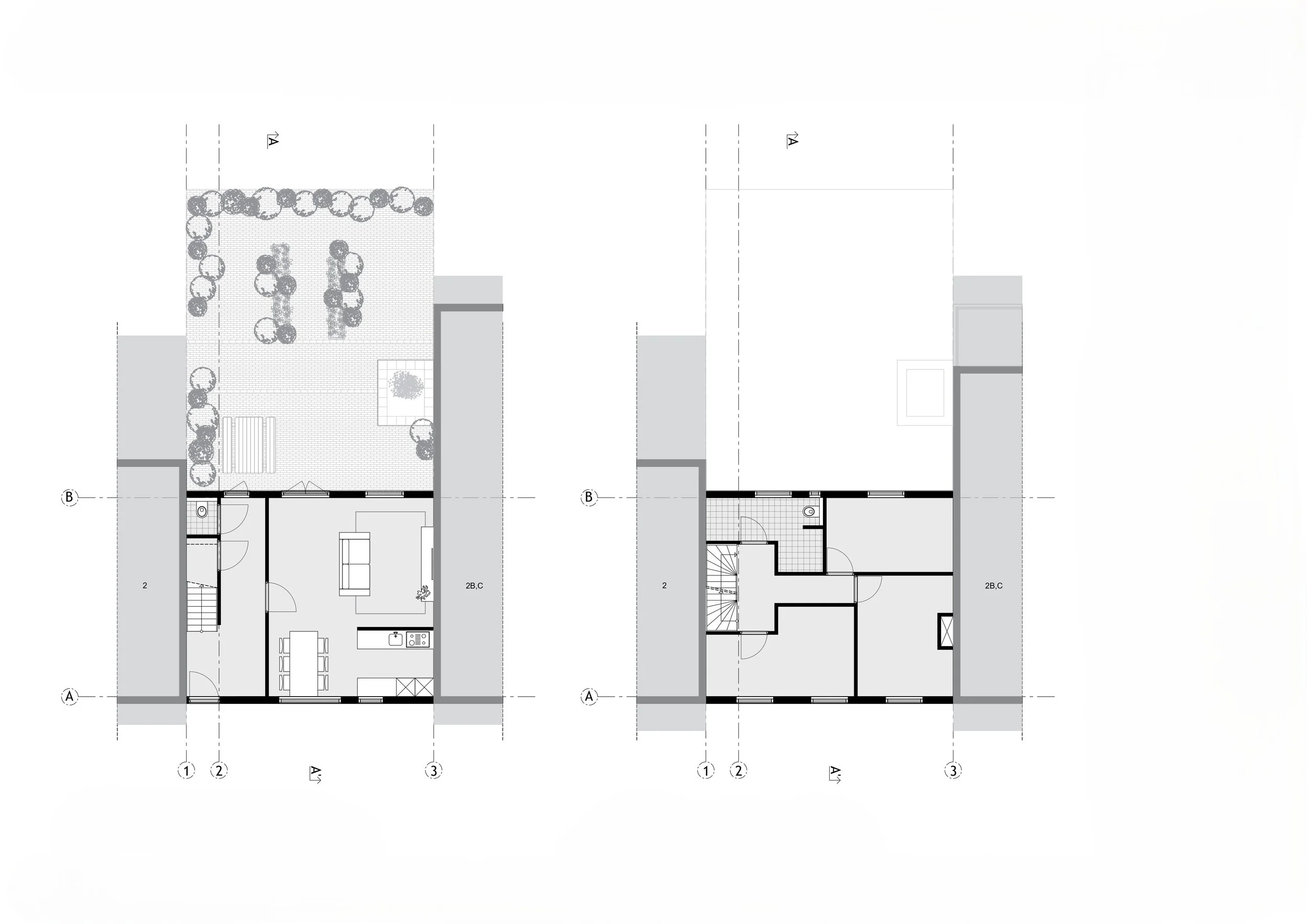
PLATTEGRONDEN

Plattegrond met AutoCad van een tweelaags woning met tuin. Begane grond toont woonkamer, keuken, eethoek, badkamer, hal en trap; eerste verdieping met slaapkamers, badkamer en overloop.

‘Meer informatie over 3D MODELLEREN’

THE RESULT

De plattegrond is een horizontale doorsnede die de indeling van de ruimtes toont. Denk aan de positie van kamers, deuren en vaste installaties zoals keuken en sanitair. Een essentieel document voor planning en uitvoering.


VERPLICHT BIJ EEN VERGUNNINGSAANVRAAG

Bij een verbouwing met vergunningsplicht vraagt de gemeente om tekeningen van zowel de bestaande als de nieuwe situatie. Daarmee laat je zien dat het ontwerp voldoet aan het Bouwbesluit en eventuele aanvullende lokale voorschriften. Vaak is ook een constructieberekening nodig om de aanvraag compleet te maken. Binnen een bouwtekening kunnen meerdere soorten tekeningen worden opgenomen, elk met een eigen functie. Denk bijvoorbeeld aan gevelaanzichten, plattegronden, doorsneden, detailtekeningen en situatietekeningen. Samen geven ze een volledig beeld van je bouwplan, zowel voor de beoordeling door de gemeente als voor een vlekkeloze uitvoering op de bouwplaats.


‘Meer informatie over DOCUMENTERING’

DETAILS

Technisch bouwtekening van een dakconstructie met details over houten balken, waterdichtingen en bevestigingsmaterialen.

Detailtekeningen zoomen in op specifieke onderdelen, zoals aansluitingen tussen materialen of isolatie oplossingen. Ze zijn belangrijk om te voldoen aan bouwvoorschriften en om uitvoeringsfouten te voorkomen.


THE RULES

SITUATIETEKENINGEN

Plattegrond met AutoCad van een tweelaags huis met tuin, woonkamer, keuken, eetkamer en slaapkamers.

‘Meer informatie over VERGUNNINGSAANVRAGEN’

Een situatietekening plaatst jouw project in zijn omgeving. Hierin staan het perceel, kadastrale gegevens en de ligging ten opzichte van de directe omgeving. Hiermee kan de gemeente de context van je bouwplan beoordelen.


‘Meer informatie over FOTOGRAFIE’

THE RULES

‘Meer informatie over FOTOGRAFIE’

Benieuwd naar de mogelijkheden?

Vraag hieronder een offerte aan.

Offerte

Volgende
Volgende

3D Rendering